149 Golden Circle Drive

Farmington, NH 03835
Beds
2
Baths
1
Square Ft.
1,108
$249,999
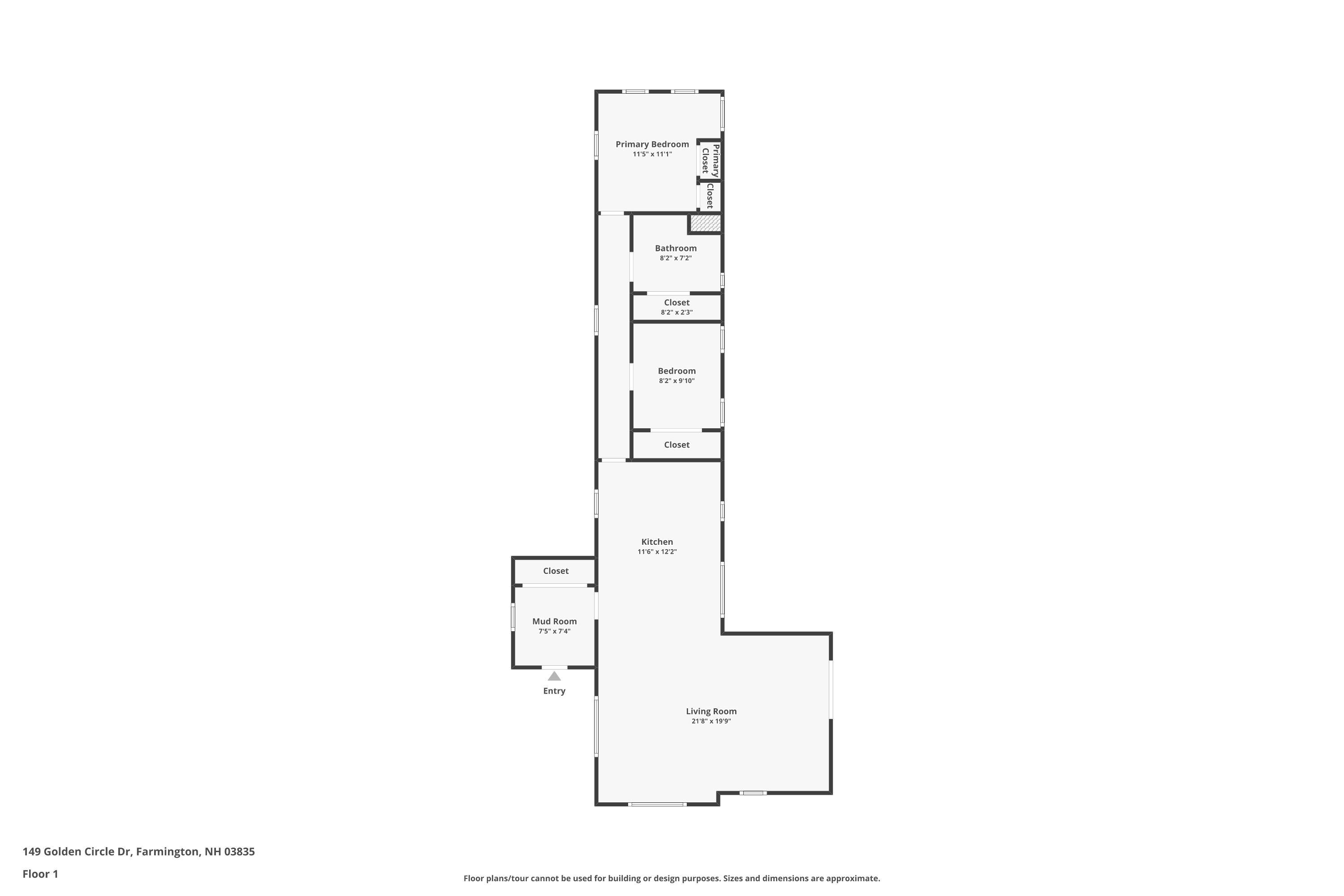
Beautifully remodeled and updated two bedroom one bath MH on over 3 acres. Move in ready condition. Metal roof, double pane windows, whole home standby generator, newer heater, updated plumbing, and more... Enjoy privacy with the sights and sounds of nature from your patio with partially fenced yard. Affordable livingRead MoreRead Less
Courtesy of Bill Snowdon, Snowdon Realty LLC 603-755-1050
Listing Snapshot
Source: Home Junction
Days Online
70
Last Updated
Property Type
Single Family
Beds
2
Full Baths
1
Square Ft.
1,108
Lot Size
3.08 Acres
Year Built
1972
MLS Number
5077060
30 Days Snapshot Of 03835
$444k
+26%
(avg) sold price
5
+25%
homes sold
19
-66%
(avg) days on market
Snapshot
Area Map
Additional Details
Property Access
Road Frontage: Yes
Building
Basement: Yes, 6 rooms, Built in 1972, 1,108 total finished sqft, Total stories: 1, Construction status: Existing, 900 unfinished sqft below grade, 1,108 finished sqft above grade
Roof
Metal
Basement
Basement access: Walkout, Bulkhead, Crawl Space, Unfinished, Exterior Access
Floors
Carpet, Vinyl
Appliances & Equipment
Dishwasher, Dryer, Range Hood, Gas Range, Refrigerator, Washer
Heating
Propane, Kerosene, Gas Heater
Cooling
None
Utilities
Electric Company: Eversource, Electric: 100 Amp Service, Circuit Breaker(s), Generator
Fees
Fee: 180, Fee Frequency: Yearly, Fee Includes: Plowing
Garage
Garage: No
Lot
3.08 acres, 2,008 approx. sqft, 134,165 sqft
Parking
Driveway: Paved
Property
Flood Zone: Unknown, Zoning: RR RUR, Seasonal: No
Sewer
750 Gallon, Leach Field, Private, Septic Design Available
Taxes
Gross amount: $2,959
Find The Perfect Home

'VIP' Listing Search

Whenever a listing hits the market that matches your criteria you will be immediately notified.

Join The List
Mortgage Calculator
Source: AgentFire
Monthly Payment
$0
Mary Merkley
REALTOR®
Agent profile image

Schools In The Area

Check out nearby schools with ratings and contact info. Source: Home Junction.

Similar Listings

View More Listings

This information is deemed reliable, but not guaranteed. The data relating to real estate displayed on this Site comes in part from the IDX Program of PrimeMLS. The information being provided is for consumers' personal, non-commercial use and may not be used for any purpose other than to identify prospective properties consumers may be interested in purchasing. Data last updated .
Data last updated .