23 Bassett Street

Barre City, VT 05641
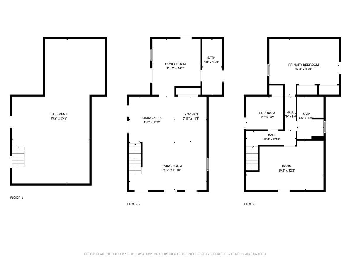
Beds
3
Baths
2
Square Ft.
1,354
$299,000
This stunning, fully renovated home is perched high out of the flood zone. This classic cape has been taken to the studs, beautifully reimagined, and thoughtfully rebuilt, offering the best of energy efficiency, style, and functionality. Nearly every surface and system in the home has been upgraded. The kitchen featuresRead MoreRead Less
Courtesy of Jolene Greene, RE/MAX North Professionals 802-655-3333
Listing Snapshot
Source: Home Junction
Days Online
7
Last Updated
Property Type
Single Family
Beds
3
Full Baths
2
Square Ft.
1,354
Lot Size
0.15 Acres
Year Built
1900
MLS Number
5084237
30 Days Snapshot Of 05641
$353k
-4%
(avg) sold price
14
+55%
homes sold
67
-41%
(avg) days on market
Snapshot
Area Map
Additional Details
Property Access
Road Frontage: TBD
Building
Basement: Yes, 6 rooms, Built in 1900, 1,354 total finished sqft, Total stories: 1, Construction status: Existing, 730 unfinished sqft below grade, 1,354 finished sqft above grade
Roof
Asphalt Shingle
Basement
Basement access: Interior, Concrete Floor, Full, Insulated, Interior Stairs, Unfinished
Floors
Vinyl Plank
Appliances & Equipment
Dishwasher, Dryer, Refrigerator, Washer, Electric Stove, Owned Water Heater
Heating
Baseboard
Cooling
None
Utilities
Electric: 200+ Amp Service, Circuit Breaker(s)
Garage
Garage: No
Lot
0.15 acres, 2,084 approx. sqft, 6,534 sqft
Parking
Driveway: Dirt
Property
Flood Zone: No, Zoning: R-04, Seasonal: No
Sewer
Public
Taxes
Gross amount: $4,353
Find The Perfect Home

'VIP' Listing Search

Whenever a listing hits the market that matches your criteria you will be immediately notified.

Join The List
Mortgage Calculator
Source: AgentFire
Monthly Payment
$0
Mary Merkley
REALTOR®
Agent profile image

Schools In The Area

Check out nearby schools with ratings and contact info. Source: Home Junction.

Similar Listings

View More Listings

This information is deemed reliable, but not guaranteed. The data relating to real estate displayed on this Site comes in part from the IDX Program of PrimeMLS. The information being provided is for consumers' personal, non-commercial use and may not be used for any purpose other than to identify prospective properties consumers may be interested in purchasing. Data last updated .
Data last updated .